To Let
£1,700 pcm




























Once home to the villages historic waterworks with Victorian elements dating back to 1912, this remarkable conversion blends industrial heritage with modern sophistication. Behind the immaculately restored dressed stone and lofty arched windows lie a collection of luxurious apartments and spacious family homes — each designed to celebrate the building’s character while offering contemporary elegance and comfort.
High ceilings, exposed beams, and original architectural details meet sleek interiors, bespoke fittings, and luxurious amenities. The result is a rare fusion of history and modern living — a place where craftsmanship, design, and heritage flow together beautifully.
No. 1 – £2,250pcm, five bedrooms (terraced-style, arranged over three floors)
No. 2 – £2,050pcm, four bedrooms (duplex: kitchen and lounge on ground floor, bedrooms on first floor)
No. 3–7 – £1,950–£2,050pcm, three to five bedrooms (duplex apartments: bedrooms on ground and first floors; kitchens and lounges on first floor to maximise views)
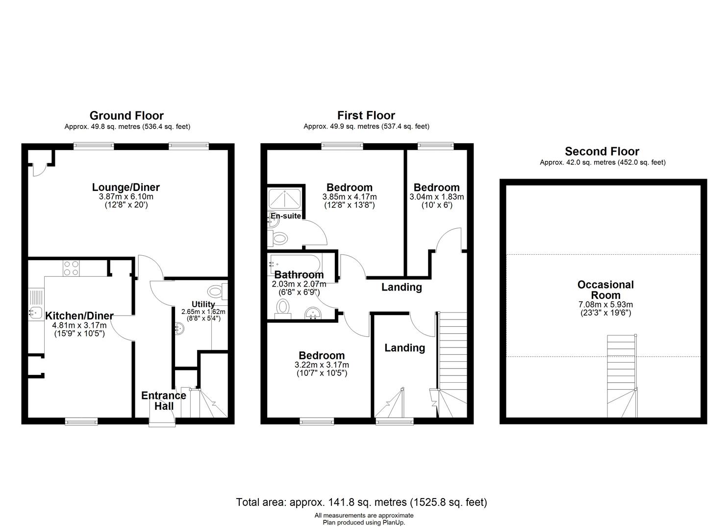
No. 8 – £1,700pcm, two bedrooms (double storey)
No. 9-11 – £1,700pcm, two bedrooms (single storey)
No. 12–16 – £2,150–£2,250pcm, four to five bedrooms (terraced-style houses arranged over three floors)
Cottages 1–4 – £2,250pcm, four bedrooms each with gardens
GRAND COMMUNAL ENTRANCE & HISTORIC HUB
This grand entrance perfectly marries luxury living with the authentic character of the Waterworks’ industrial past. Towering ceilings are accentuated by exposed steel beams and pillars, beautifully illuminated by natural light streaming through skylights and enhanced by carefully curated industrial-style lighting.
Original Victorian exposed brickwork and tiled-trimmed walls pay homage to the building’s heritage, while modern hardwood heritage interior doors and double-glazed windows provide contemporary comfort and efficiency.
The entrance features a thoughtful blend of mosaic inspired tiled flooring and stone slab pathways, steps, and ramps that gracefully lead to each apartment’s doorway.
At the heart of the communal space, large pentagonal flower beds provide a winter garden where built-in benches create a welcoming hub, fostering a vibrant community atmosphere for residents to connect and unwind.
The communal atrium offers residents a calming winter garden environment to unwind and socialise with neighbours or relax alone on the inbuilt furniture, enjoying a sense of peace and tranquility offered by Victorian roof lights flooding the space with light.
APARTMENT ENTRANCES
Each apartment entrance welcomes you with tiled flooring and Farrow & Ball painted walls, creating a clean and inviting first impression. Central heating radiators ensure warmth from the moment you step inside, while LED lights provide bright, efficient lighting.
Hardwood doors offer secure access to all rooms, complemented by practical storage cupboards to keep your living space organised and clutter-free.
OPEN PLAN LIVING SPACES
The majority of apartments feature spacious open-plan living areas designed to maximize natural light and create a bright, airy atmosphere. Freshly painted walls provide a crisp, clean backdrop, while central heating radiators ensure warmth and comfort throughout the year.
A mix of hardwood heritage double-glazed windows and skylights flood the space with daylight, beautifully complementing the elegant combination of hardwood and tiled flooring. Carefully positioned feature ceiling spotlights and LED lights enhance the ambiance, making these living spaces perfect for relaxing, entertaining, and everyday life.
MODERN SPACIOUS KITCHEN/DINERS
The kitchens are thoughtfully designed with a variety of colour and style options for wall units, base cabinets, drawer units, and islands, allowing for a personalised touch that suits any taste.
Each kitchen is equipped with high-quality stainless steel sinks, drains, and taps, paired with integrated electric ovens and four-ring hobs for seamless cooking experiences.
Sleek worktops and splashbacks come in a range of colours, perfectly complementing the cabinetry to create a stylish, cohesive and distinctive look.
Practicality is key, with designated space and plumbing for dishwashers and fridge/freezers, ensuring every kitchen is as functional as it is beautiful.
GENEROUS LOUNGES
Enjoy generous living areas designed for relaxation and gatherings. The lounges feature a tasteful combination of wooden flooring or plush carpeted zones, offering both warmth and style underfoot.
Comfort is ensured year-round with efficient central heating radiators, while abundant natural light floods the rooms through hardwood heritage double-glazed windows and skylights. Carefully positioned ceiling light points add the perfect ambient glow, creating an inviting atmosphere for every occasion.
WC / UTILITY ROOMS
Each bathroom is thoughtfully designed with modern comfort and style in mind, featuring pedestal toilets and hand wash basins. Heated towel rails and heated illuminated mirrors provide warmth and added luxury, while freshly painted walls and panelled splashbacks create add elegance.
Spotlights illuminate the space and extractor fans ensure excellent ventilation throughout.
Most apartments also include dedicated space and plumbing for washing machines and dryers, allowing you to create a convenient, fully functional utility area tailored to your needs.
COMFORTABLE & VERSATILE BEDROOMS
The development offers a diverse range of king sized, double and single bedrooms to suit every lifestyle and family size. Each room features soft carpet flooring and freshly painted walls, creating a welcoming and restful environment.
Central heating radiators ensure warmth, while ceiling light points or spotlights provide flexible, ambient lighting. Natural light fills the rooms through either heritage hardwood double-glazed windows or skylights, enhancing the airy feel.
Primary bedrooms—and in some cases, secondary bedrooms—benefit from the convenience of en-suite bathrooms, adding privacy and ease to daily routines.
STYLISH EN-SUITES
Each en-suite bathroom features a tasteful muted grey or chocolate panelled finishes, creating a modern and calming atmosphere. All include a pedestal WC, hand wash basin, and spacious showers with glass screen doors.
Heated towel rails add a touch of luxury and comfort, while spotlights and extractor fans ensure bright illumination and proper ventilation for a fresh, inviting space.
LUXURY BATHROOMS
These beautifully appointed bathrooms feature a sophisticated combination of copper or marble-effect panelled finishes, complemented by freshly painted walls in coordinating tones.
Each bathroom includes a classic three-piece suite: a panelled bath with an overhead shower and glass screen, a hand wash basin, and a pedestal WC.
Additional touches of luxury include heated towel rails, heated and illuminated mirrors, elegant tiled flooring, ceiling light points, and extractor fans—providing both comfort and style in every detail.
STAIRS & LANDINGS
The development features a variation of carpeted and wooden staircases, complemented by freshly painted walls, sturdy handrails, and classic bannisters. Central heating radiators ensure warmth and comfort throughout.
Natural and artificial light combine beautifully, with wall lights, ceiling light points, hardwood double-glazed windows (both interior and exterior), and skylights flooding the space with brightness.
Solid doors provide secure and stylish access to all rooms, completing the refined look of these transitional spaces.
EXCLUSIVE THIRD FLOOR MULTI-USE SPACE
Available only for three floored apartments, this distinctive area offers versatile potential—perfect as additional storage, a grand home office, or an occasional room.
Flooded with natural light from large hardwood double-glazed windows and a variety of heritage skylights, the space is both bright and inviting. Original exposed metal beams add character and a touch of industrial heritage, beautifully contrasting with the soft carpet flooring and freshly painted walls.
Wall lights and ceiling light points provide flexible illumination, enhancing the room’s welcoming and functional atmosphere.
ATTRACTIVE COMMUNAL GARDEN & SECURE PARKING
Residents can enjoy a beautifully landscaped communal garden featuring Yorkstone slabbed pathways leading to each communal entrance, bordered by vibrant flower beds and well-maintained shrubs that create a peaceful, welcoming environment.
An electric gated carpark is conveniently available, adding ease for residents with vehicles.
For added security and convenience, all apartments benefit from a modern video call entry system, allowing residents to control access with confidence and ease.
RENT
•No. 1 – £2,250pcm, five bedrooms (terraced-style house arranged over three floors)
•No. 2 – £2,050pcm, four bedrooms (duplex: kitchen and lounge on ground floor, bedrooms on first floor)
•No. 3 – £1,950pcm, three bedrooms (duplex apartment: bedrooms on ground and first floors; kitchens and lounges on first floor to maximise views)
•No. 4 – £2,050pcm, five bedrooms (duplex apartment: bedrooms on ground and first floors; kitchens and lounges on first floor to maximise views)
•No. 5 – £2,050pcm, five bedrooms (duplex apartment: bedrooms on ground and first floors; kitchens and lounges on first floor to maximise views)
•No. 6 – £2,050pcm, five bedrooms (duplex apartment: bedrooms on ground and first floors; kitchens and lounges on first floor to maximise views)
•No. 7 – £2,050pcm, five bedrooms (duplex apartment: bedrooms on ground and first floors; kitchens and lounges on first floor to maximise views)
•No. 8 – £1,700pcm, two bedrooms (double storey) UNAVAILABLE
•No. 9 – £1,700pcm, two bedrooms (single storey)
•No. 10 – £1,700pcm, two bedrooms (single storey) UNAVAILABLE
•No. 11 – £1,700pcm, two bedrooms (single storey) UNAVAILABLE
•No. 12 – £2,150pcm, four bedrooms (terraced-style house arranged over three floors)
•No. 13 – £2,150pcm, four bedrooms (terraced-style house arranged over three floors)
•No. 14 – £2,150pcm, four bedrooms (terraced-style house arranged over three floors)
•No. 15 – £2,150pcm, four bedrooms (terraced-style house arranged over three floors)
•No. 16 – £2,250pcm, five bedrooms (terraced-style house arranged over three floors)
•Cottage 1- £2250pcm, four bedrooms (with gardens)
•Cottage 2- £2250pcm, four bedrooms (with gardens)
•Cottage 3- £2250pcm, four bedrooms (with gardens)
•Cottage 4- £2250pcm, four bedrooms (with gardens)
Owning a home is a keystone of wealth… both financial affluence and emotional security.
Suze Orman