Sold STC
£180,000
























** NO CHAIN – FREEHOLD ** This well-presented two-bedroom family home is perfectly positioned in the highly sought-after Hillsborough area, just a stone’s throw from the beautiful Hillsborough Park and surrounded by excellent local amenities. Enjoying pleasant park views, this property benefits from a convenient location close to shops, schools, a sports centre and superb transport links — everything you need is within easy reach. The accommodation comprises a side entrance leading into an inner hallway, a welcoming lounge, a spacious open-plan kitchen and dining room, and a useful cellar. Upstairs, there are two comfortable bedrooms — the main with built-in wardrobe storage — along with a family bathroom. Outside, the property enjoys a private front garden framed by hedges, and a fantastic rear garden offering plenty of outdoor space to enjoy.
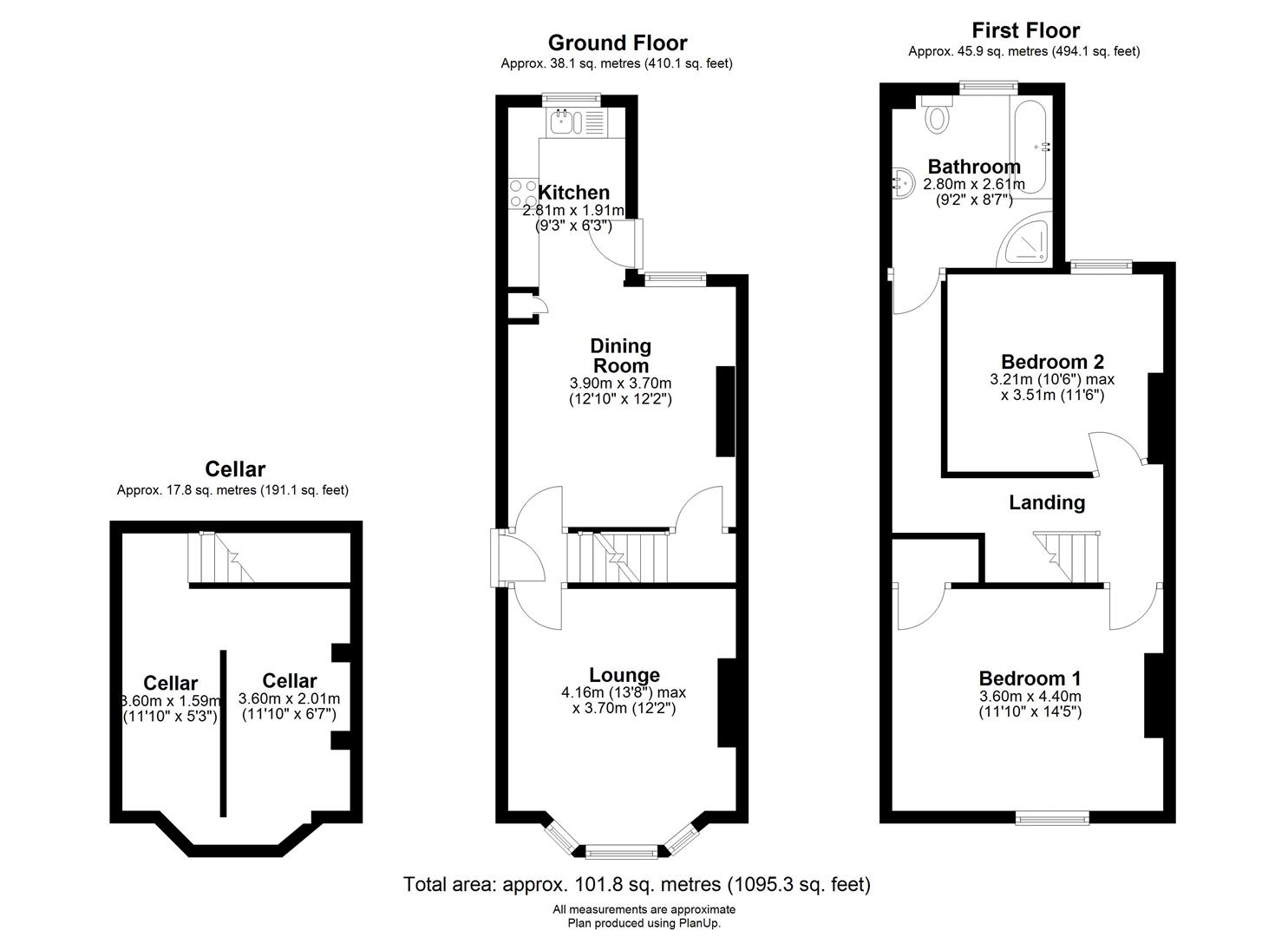
ENTRANCE HALLWAY
Accessed via a side entrance door, the hallway has tiled flooring and a spotlight. Stairs lead to the first floor, with solid doors opening to the lounge and the open-plan kitchen dining room.
LOUNGE
A generously proportioned lounge with a front-facing bay window, flooding the room with natural light and offering pleasant views of Hillsborough Park. It features a decorative fireplace, wood-effect flooring, a ceiling light point, and a central heating radiator, creating a comfortable and versatile living space.
OPENPLAN KITCHEN DINING ROOM
KITCHEN
The off-shot kitchen is fitted with wood-effect wall, base, and drawer units, complemented by black roll-top work surfaces, under-unit lighting, and tiled flooring. A one-and-a-half sink with drainer sits beneath a UPVC window, offering views over the rear garden. The space includes an integrated oven and gas hob with extractor above, along with plumbing and space for additional under-unit appliances. A ceiling light point illuminates the room, and an obscure glazed door provides rear access to the garden.
DINING ROOM
A good-sized dining area featuring a decorative fireplace and a rear-facing UPVC window with views over the garden. The room has tiled flooring, a ceiling light point, and a central heating radiator, with a solid door leading to the cellar head.
CELLAR
Accessed via steps, the cellar is a practical space with power and lighting, ideal for additional storage or utility use.
STAIRS RISING TO THE FIRST FLOOR
BEDROOM ONE
A spacious primary bedroom featuring a decorative fireplace and a front-facing UPVC window, offering elevated views over the surrounding area. The room includes a solid door leading to a built-in wardrobe storage cupboard, carpet flooring, and a ceiling light point.
BEDROOM TWO
A further double bedroom featuring a decorative fireplace and a rear-facing UPVC window overlooking the garden. The room has carpet flooring and a ceiling light point, providing a comfortable and versatile space.
FAMILY BATHROOM
The large family bathroom is fitted with a WC, washbasin, panelled bath with handheld telephone attachment, and a separate shower enclosure with wall-mounted shower and side screen doors. It features part-tiled walls, tiled flooring, a rear-facing UPVC obscure window, a vertical heated towel rail, and a ceiling light point.
FIRST FLOOR LANDING AND STAIRS
The first-floor landing is fitted with carpet flooring and spotlights, with solid doors leading to the two bedrooms and the family bathroom.
FRONT GARDEN
The front garden is low-maintenance, laid with pebbles and paving, and bordered by hedges that provide privacy from the road.
REAR GARDEN
The larger rear garden features a pebbled entertaining area and an outhouse offering practical storage. Steps lead down to a mainly lawned area with a planting bed, mature shrubs, and trees, providing a versatile and inviting outdoor space. A gate at the pebbled area provides rear access to the property.
DISCLAIMER
1. PROPERTY MISDESCRIPTION ACT 1967 & 1991: We endeavour to make the details and measurements as accurate as possible. However, please take them as indicative only, made as a result of a visual inspection of the property and from information supplied by the vendor.
2. MEASUREMENTS are taken with an electronic device. If you are ordering carpets or furniture, we would advise that the details are checked to your personal satisfaction by taking your own measurements upon viewing.
3. No services, apparatus, equipment, fixtures or fittings have been tested by United Homes so we cannot verify that they are in working order or fit for purpose. A Buyer is advised to obtain verification from their own Trades person, Surveyor or Solicitor.
4. References to the Tenure of a Property are based on information supplied by the Seller. United Homes has not had sight of the title documents and has not checked the tenure or the boundaries with the Land registry. A Buyer is advised to obtain verification from their own Solicitor. United Homes accept no responsibility for any errors or omissions.
5. MONEY LAUNDERING: We may ask for further details regarding proof of your identification and proof of funds after receiving your offer on a property. Please provide these in order to reduce any delay.
Owning a home is a keystone of wealth… both financial affluence and emotional security.
Suze Orman