Sold STC
£240,000

















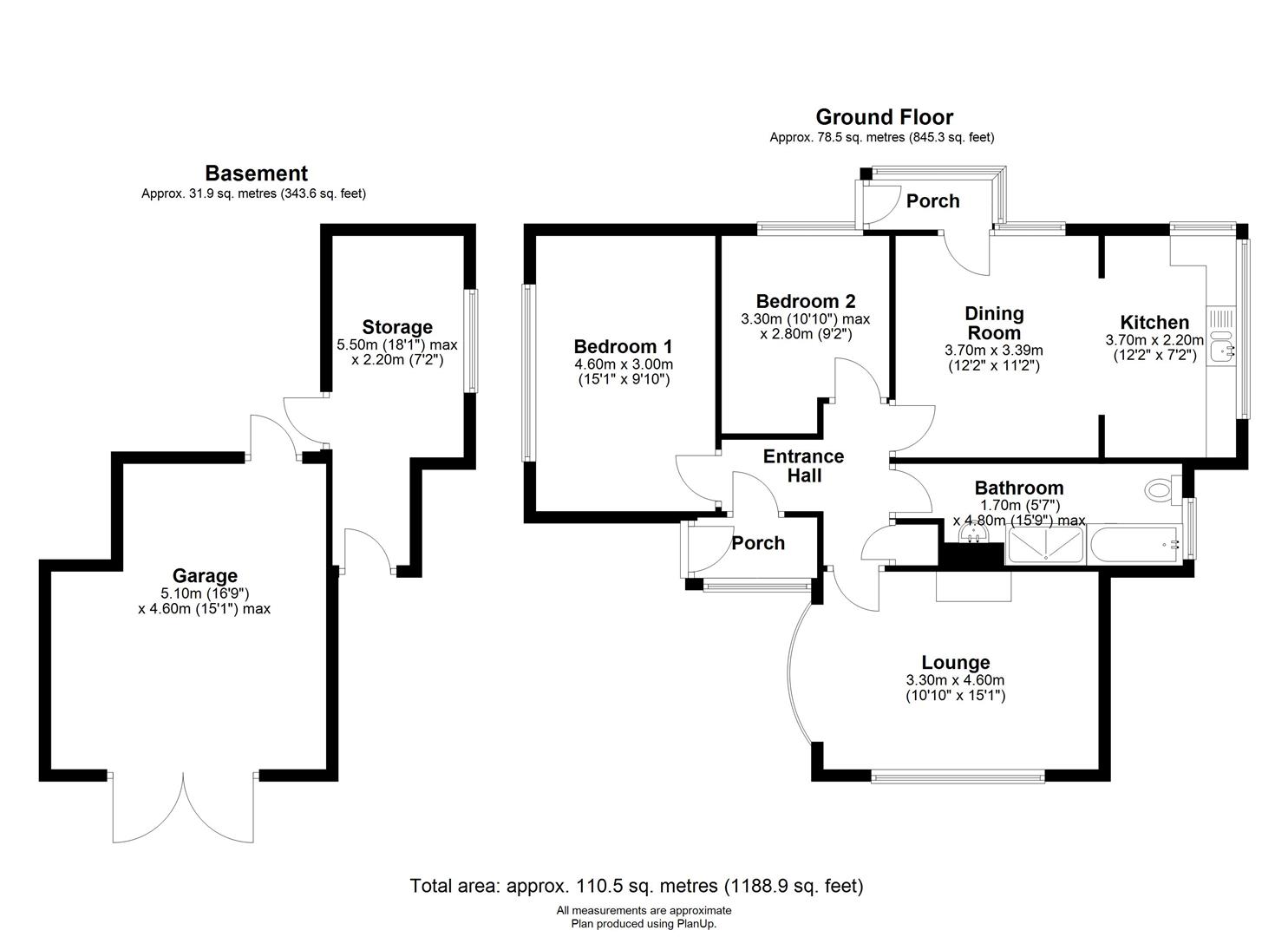
** NO CHAIN – FREEHOLD ** A rare opportunity to create your dream home in the heart of Oughtibridge! This two bedroom detached bungalow offers fantastic potential for modernisation, with spacious, light-filled rooms and off-road parking. The current lounge could easily be converted into a third bedroom, allowing the open-plan kitchen/dining room to become a stylish lounge/kitchen space. The accommodation also includes a front porch, two bedrooms, a family bathroom, rear porch, garage, and a good sized front and side garden. Perfectly positioned for local amenities and with so much potential to personalise and extend, this property is perfect for creating a home tailored entirely to your lifestyle.
ENTRANCE PORCH
The property offers excellent potential and would benefit from a programme of modernisation throughout, allowing purchasers the opportunity to create a home tailored to the buyers own taste and style. A welcoming front porch featuring large leaded double-glazed side panels and a matching glazed UPVC entrance door, allowing plenty of natural light to enter. Finished with laminate flooring and painted brickwork, the space offers an inviting first impression and leads through to the main hallway.
HALLWAY
The hallway is fitted with wood-effect flooring and benefits from an electric radiator and central ceiling light point. Doors lead to all principal rooms, including a glazed door to the primary bedroom, a solid door to the second bedroom, and a useful storage cupboard. Partially obscure glazed doors provide access to both the lounge and the open-plan kitchen/dining area, allowing light to flow while maintaining separation.
LOUNGE
The lounge is a bright and generously proportioned room, featuring two large windows to the front and side elevations that allow plenty of natural light to flow in. A decorative feature fireplace adds character, complemented by wall and ceiling light fittings for flexible lighting. Finished with wood-effect flooring and an electric radiator, the room offers a warm and welcoming feel. Alternatively, this versatile space could be used as a third bedroom, depending on the buyer’s needs.
OPEN PLAN KITCHEN DINING ROOM
KITCHEN
The kitchen is fitted with a selection of wall, base, and drawer units, offering practical storage and functionality. Roll-top work surfaces and a one-and-a-half bowl sink with drainer and mixer tap complete the layout. A large rear-facing window allows for plenty of natural light, with an additional obscure glazed window to the side. There is space and plumbing for a freestanding oven and hob, washing machine, and upright fridge freezer. The room also benefits from spot lighting, an extractor fan, and lino flooring.
DINING ROOM
Open plan to the kitchen, the dining area offers a practical and adaptable space for family meals or entertaining. A window to the side elevation provides additional daylight, while wall and ceiling light points ensure good illumination. Carpeted flooring and an electric radiator complete this inviting area, which benefits from a part obscure glazed door leading to the rear porch.
REAR PORCH
The rear porch benefits from glazed and obscure glazed windows to two aspects, admitting daylight while maintaining privacy. Finished with laminate flooring, the porch offers a useful area with an obscure glazed door providing rear access.
BEDROOM ONE
The primary bedroom features a large window to the front elevation, flooding the room with natural light. Finished with wood-effect flooring and a central ceiling light point, it offers a bright and comfortable space.
BEDROOM TWO
Bedroom two features a window to the side elevation, providing ample daylight and ventilation. The room benefits from wood-effect flooring, an electric radiator, and a central ceiling light point, offering a flexible space suitable for various uses.
FAMILY BATH AND SHOWER ROOM
This spacious bathroom includes a WC, wash basin set into a vanity storage unit, and a panelled bath. There is also a separate shower enclosure with a wall-mounted electric shower and screen door. An obscure glazed window to the rear elevation provides privacy while admitting daylight. The room features lino flooring, part-tiled walls, spotlights, an extractor fan, and loft hatch access.
GARAGE AND DRIVE
Accessed via an iron cast gate, the driveway provides off-road parking for one car and is surrounded by mature shrubs and planting, enhancing the property’s kerb appeal. This leads to the under-house garage, which features an up-and-over door, as well as power and lighting.
OUTSIDE
To the front and side of the property is a garden predominantly laid to lawn, featuring a paved pathway leading to the front entrance door and a paved entrance area. The garden is bordered by hedging, with steps leading down to the driveway and garage access.
DISCLAIMER
1. PROPERTY MISDESCRIPTION ACT 1967 & 1991: We endeavour to make the details and measurements as accurate as possible. However, please take them as indicative only, made as a result of a visual inspection of the property and from information supplied by the vendor.
2. MEASUREMENTS are taken with an electronic device. If you are ordering carpets or furniture, we would advise that the details are checked to your personal satisfaction by taking your own measurements upon viewing.
3. No services, apparatus, equipment, fixtures or fittings have been tested by United Homes so we cannot verify that they are in working order or fit for purpose. A Buyer is advised to obtain verification from their own Trades person, Surveyor or Solicitor.
4. References to the Tenure of a Property are based on information supplied by the Seller. United Homes has not had sight of the title documents and has not checked the tenure or the boundaries with the Land registry. A Buyer is advised to obtain verification from their own Solicitor. United Homes accept no responsibility for any errors or omissions.
5. MONEY LAUNDERING: We may ask for further details regarding proof of your identification and proof of funds after receiving your offer on a property. Please provide these in order to reduce any delay.
Owning a home is a keystone of wealth… both financial affluence and emotional security.
Suze Orman